Создание развертки внутренней поверхности кухни - важный этап проектирования интерьера. Этот процесс позволяет визуализировать расположение мебели и оборудования, оптимизировать использование пространства и сделать кухню функциональной и удобной.
Первым шагом в создании развертки кухни является изучение планировки помещения. Необходимо учесть размеры стен, окон, дверей, а также расположение электрических розеток и водопровода. Эти данные помогут определить оптимальное размещение кухонной мебели и техники.
























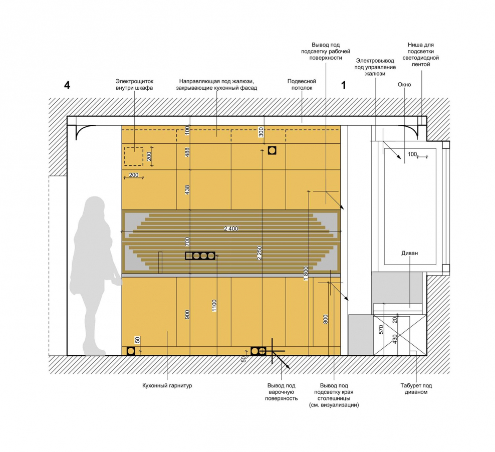
Шаг 1: Измерение и обозначение стен
Для начала измерьте длину и ширину каждой стены в кухне. Используйте измерительную ленту или линейку для получения точных данных. Обозначьте на бумаге каждую стену и отметьте расположение окон, дверей и других элементов.
После того как вы создали базовый план стен, перенесите данные на специальный графический лист. Это поможет вам лучше визуализировать структуру кухни и определить оптимальное размещение мебели.
























Шаг 2: Размещение мебели и техники
На следующем этапе определите расположение кухонных шкафов, столовой зоны, рабочей поверхности и техники. Учитывайте эргономику и удобство использования каждого элемента интерьера. Разместите мебель так, чтобы создать оптимальный рабочий процесс на кухне.
Помните, что развертка внутренней поверхности кухни должна учитывать не только функциональность, но и эстетику. Подбирайте цветовые решения и стили мебели, которые гармонично впишутся в общий дизайн помещения.
























Шаг 3: Проверка и корректировка
После того как вы создали развертку внутренней поверхности кухни, внимательно изучите ее и проведите проверку на наличие ошибок или несоответствий. Возможно, вам придется внести некоторые коррективы в расположение мебели или техники, чтобы добиться оптимального результата.
Не забывайте, что развертка кухни - это основа успешного проектирования интерьера. Используйте этот инструмент для того, чтобы создать уютное и функциональное пространство, которое будет отвечать всем вашим потребностям.
Похожие стать:
- Как происходит развертка проекта
- Поверхности в помещениях: гармония пола и стен
- Как создать идеально ровный потолок: секреты идеальной поверхности
- Как создать уют с помощью мраморной поверхности в интерьере
- Керамическая плитка: творчество на поверхности
- Почему облицовка поверхности пола плиткой в интерьере – стильное и практичное решение
- Пол наливной самовыравнивающийся в интерьере: создание идеальной поверхности
- Искусство на керамической поверхности: панно на кафельной плитке
- Исследование уникальной красоты рустикальной поверхности
- Удивительная красота черной глянцевой поверхности